Projects | Borrage Lane
Borrage Lane
Ripon
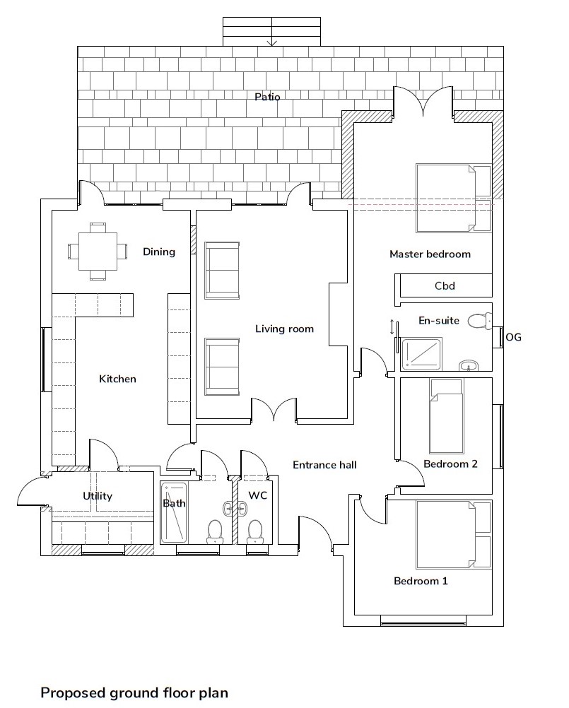
Daniel Powell Studio were asked by our clients to design an extension for this bungalow in Ripon, in order to create an en-suite in the master bedroom.
Planning granted and now completed.
Proposed south elevation
×
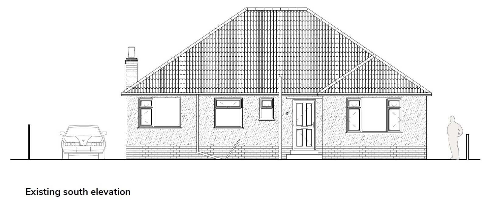
Existing south elevation
×
Proposed north elevation
×
Existing north elevation
×
Proposed east elevation
×
Existing east elevation
×
Proposed west elevation
×
Existing west elevation
×
Proposed ground floor plan
×
Existing ground floor plan
×