Projects | Class Q – Barns 1 and 2

Class Q – Barns 1 and 2

Bishop Thornton


Daniel Powell Studio were commissioned to provide a detailed construction package along with dealing with any relevant planning condition discharges to enable this Class Q conversion to commence onsite in the soonest possible timeframe.

A site that benefits from having Class Q planning permission already secured on two large Barns.

As part of our duty we have dealt with all Ecology issues, Natural England licenses for both Bats and Barn Owls, Contaminated Land surveys and the required pre commencement planning condition discharges.

Due onsite Spring 2026.

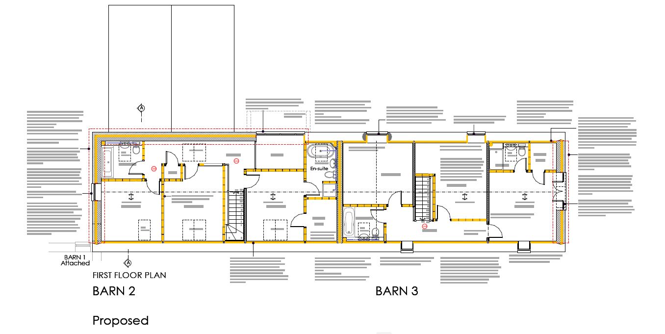
Proposed floor plan

Proposed floor plan

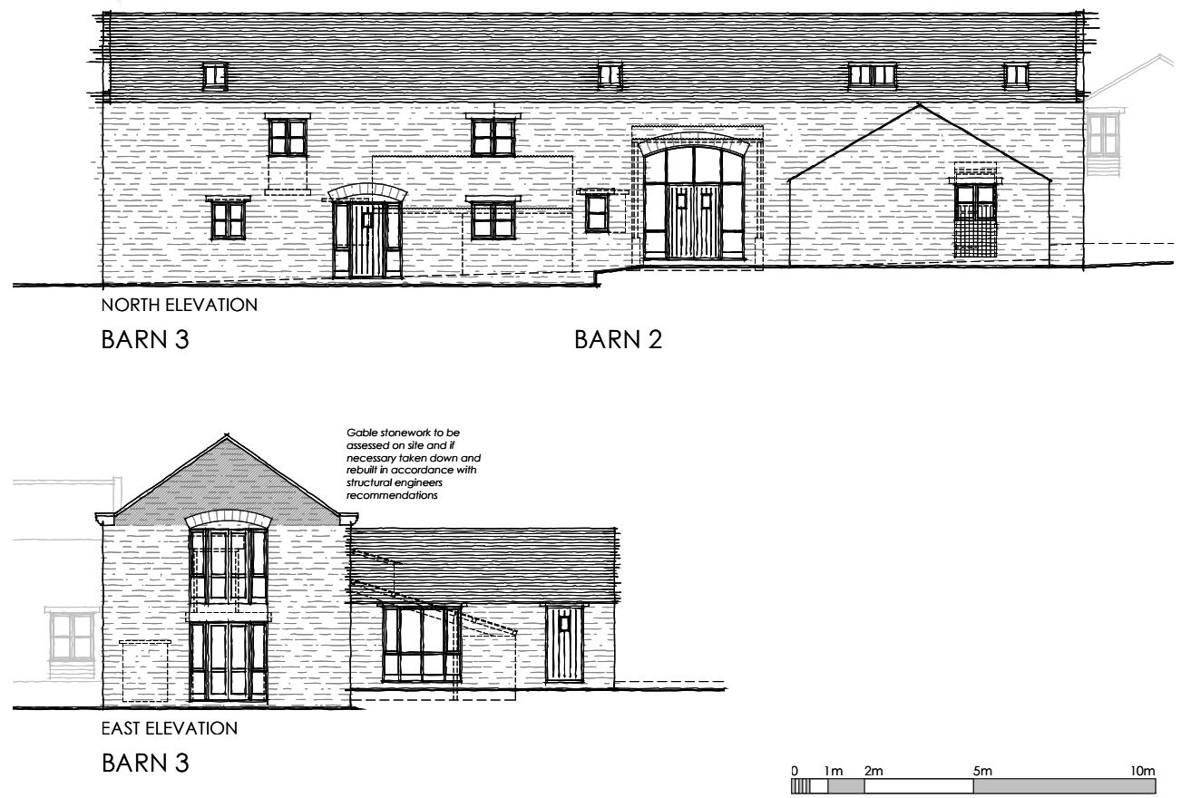
Proposed elevation

Proposed elevation

Proposed Elevation

Existing drawing set