Projects | Leeming Bar Stables

Leeming Bar Stables

Leeming Bar


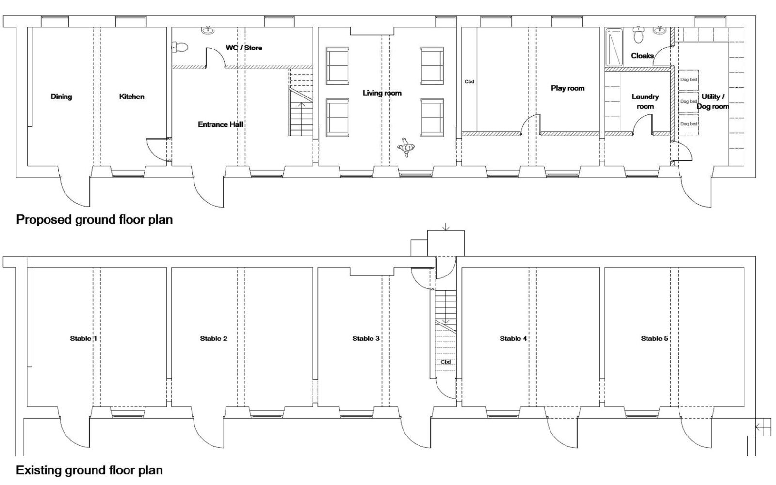
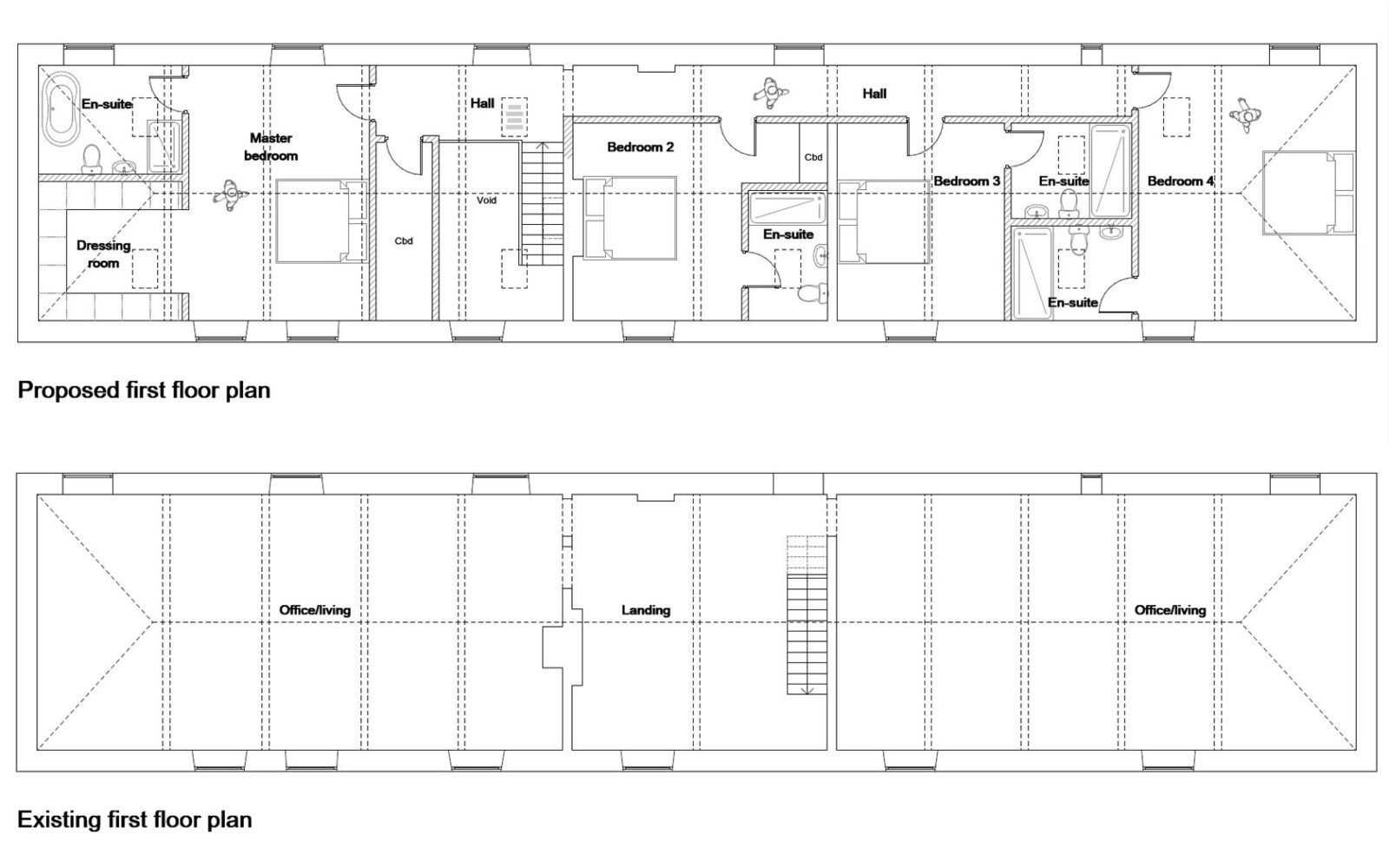
Daniel Powell Studio were approached by our client to assist with multiple separate developments within this particular site, one element being the conversion of a two-storey detached building, formerly used as stables with first floor living/office accommodation, to form an additional dwelling.

Situated within the curtilage of a Grade II listed property on the edge of Leeming Bar, the project required a thoughtful and considered design approach to preserve the building's character, whilst also meeting our client's needs.

Planning and listed building consent secured, and subsequent building regulations and tender package completed.

Existing & Proposed South elevation

Existing & Proposed North elevation

Existing & Proposed Ground floor plan

Existing & Proposed First floor plan

Existing & Proposed Entrance gates