Projects | Vista Bella – Bishop Thornton

Vista Bella – Bishop Thornton

Harrogate


Daniel Powell Studio were approached by our client and commissioned to re-design this Class- Q conversion permission they inherited on purchase.

We managed to get it on site with full working drawings and project management very soon after purchase with a complete redesign and revised construction specification. Development value on this project is around £2,250,000

Formally a somewhat decayed rusting cow shed c. 5,000 sq.ft of space set in 3-acres will be turned into a modern, chic luxury home available for long term rental.

With far reaching views towards Sawley Hall, the name Vista Bella translates from Italian as ‘Beautiful view’.

Completion due 2025 and we are really excited to watch this one progress

Proposed elevation set

Proposed construction ground floor plan

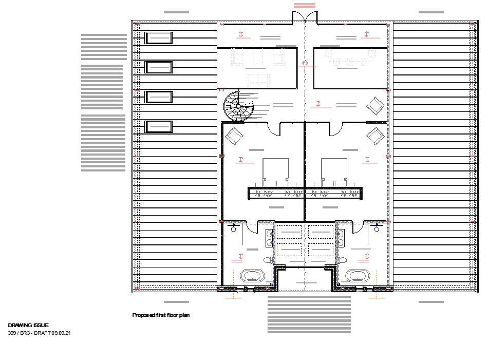
Proposed construction first floor plan

Proposed Construction Section